Reuchlinhaven 78

2993EL BARENDRECHT
Verkocht

Omschrijving

Op zoek naar een luxe afgewerkt appartement op een toplocatie, waar comfort en gemak samenkomen? Dit ruime 3-kamer appartement op de vijfde verdieping van een uitstekend onderhouden complex biedt alles wat u zich kunt wensen. Hier geniet u dagelijks van een prachtig vrij uitzicht, een royale woonkamer met luxe open keuken, een overdekt terras en twee comfortabele slaapkamers. Dankzij de eigen berging en parkeerplaats in de onderbouw, de lift en de videofooninstallatie is het wooncomfort compleet.
De ligging is werkelijk uniek: enerzijds loopt u zo naar het levendige Havenhoofd, waar u zich omringd weet door gezellige restaurants en terrassen. Anderzijds vindt u het winkelcentrum Carnisse Veste op loopafstand, met een breed aanbod aan winkels en een wekelijkse markt die extra sfeer brengt. Bovendien wordt het Havenhoofd-plein volledig vernieuwd met meer groen, sfeervolle verlichting en een moderne uitstraling – een heerlijke plek om te ontspannen en te ontmoeten.
Kortom: dit appartement combineert een luxe afwerking met een ideale ligging en is daarmee een buitenkans voor wie comfortabel, stijlvol en centraal wil wonen. U begrijpt dat dit een woning is die u niet mag missen.

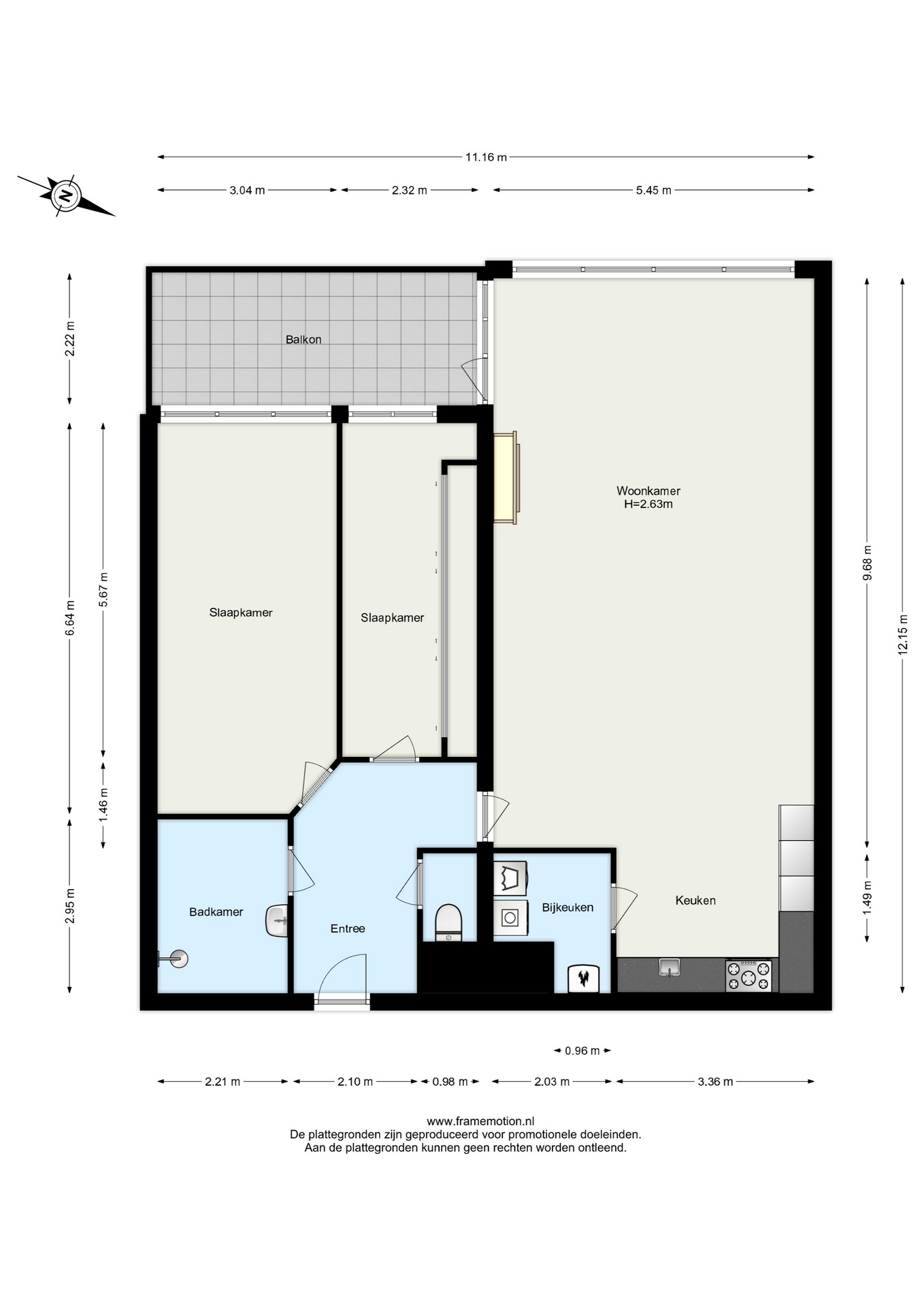
Indeling met indicatieve maten

BEGANE GROND:

U betreedt het complex via de afgesloten entree met brievenbussen, videofooninstallatie, lift en trappenhuis. Vanuit hier heeft u toegang tot de bergingen en de eigen parkeerplaats in de onderbouw. Het complex wordt uitstekend onderhouden en heeft een verzorgde, nette uitstraling.

VIJFDE VERDIEPING:

Entree & hal
Via de voordeur komt u in de hal, die toegang biedt tot alle vertrekken van het appartement. Het gehele appartement is voorzien van een fraaie laminaatvloer, wat zorgt voor een warme en moderne uitstraling.

Woonkamer & terras
De riante woonkamer (ca. 53 m²) is licht en ruim opgezet en biedt een prachtig vrij uitzicht over de omgeving. De cinewall met tv-aansluiting en elektrische haard zorgt voor een sfeervolle eyecatcher. Grote ramen zijn voorzien van elektrische screens voor optimaal comfort. Vanuit de woonkamer stapt u direct het overdekte terras (ca. 12 m²) op, gelegen op het noordwesten. Dit terras is voorzien van een elektrisch bedienbaar zonnescherm, kunststof vloerafwerking en biedt het hele jaar door een heerlijke plek om te ontspannen.

Keuken & bijkeuken
De luxe open keuken (ca. 8 m²) in hoekopstelling is uitgevoerd in beige met een antracietkleurig kunststof aanrechtblad. Uitgerust met o.a. een 4-pits inductiekookplaat, rvs/zwart glazen afzuigkap, koel/vriescombinatie en combi-oven. Ook is er een handige coffeecorner en veel bergruimte. De keuken is voorzien van dimbare inbouwspots met afstandsbediening en heeft strak gestucte wanden met afwasbare verf. Aansluitend vindt u de praktische bijkeuken met ruimte voor wasmachine, droger, CV-installatie en mechanische ventilatie, plus extra bergruimte.

Slaapkamers
Beide slaapkamers liggen aan de balkonzijde en zijn voorzien van laminaatvloer.

Slaapkamer 1 (ca. 19 m²) beschikt over een airco.

Slaapkamer 2 (ca. 13 m²) heeft een vaste kastenwand over de gehele lange zijde.

Badkamer
De badkamer (ca. 7 m²) is luxe uitgevoerd met leistenen wandafwerking, een ruime inloopdouche en een modern wastafelmeubel met spiegel inclusief verlichting. De donkere vloer- en wandafwerking geven de ruimte een stijlvolle, hotelwaardige uitstraling.

- Luxe afgewerkt 3-kamer appartement op de 5e verdieping
- Zeer goed onderhouden complex met lift en videofooninstallatie
- Eigen berging en eigen parkeerplaats in de onderbouw
- Royale woonkamer met cinewall en elektrische haard
- Vrij uitzicht over de omgeving
- Luxe open keuken met moderne inbouwapparatuur
- Handige bijkeuken met veel bergruimte
- Twee ruime slaapkamers, waarvan één met airco en één met kastenwand
- Luxe badkamer met inloopdouche en stijlvolle afwerking
- Overdekt terras op het noordwesten met elektrisch zonnescherm

Makelaar: Marco Bos
Lees meer

Kenmerken

Overdracht

Aangeboden sinds
4 december 2025
Status
Verkocht
Aanvaarding
In overleg
Bijdrage VvE
€ 242,44 per maand

Bouw

Soort woning
Appartement
Soort appartement
Bovenwoning
Bouwjaar
2007

Oppervlakten en inhoud

Oppervlakte wonen
120 m²
Oppervlakte gebouwgebonden buitenruimte
11 m²
Oppervlakte externe bergruimte
21 m²
Inhoud
376 m³

Indeling

Aantal kamers
3
Aantal slaapkamers
2
Aantal badkamers
1
Badkamervoorzieningen
Wastafelmeubel en inloopdouche
Aantal woonlagen
1
Gelegen op
5
Voorzieningen
Mechanische ventilatie, buitenzonwering, lift en airconditioning

Energie

Energielabel
A
Verwarming
Cv-ketel
Cv-ketel
Combiketel uit 2019

Buitenruimte

Ligging
Aan water, in centrum, in woonwijk en vrij uitzicht
Tuin
Geen tuin

Bergruimte

Schuur/berging
Inpandig

Garage

Soort garage
Geen garage

Foto's

Plattegronden

Downloads

Video's

360° foto's

Locatie

Ook jouw woning succesvol verkopen?

Neem dan contact op

Gratis waardebepaling